Descrizione 
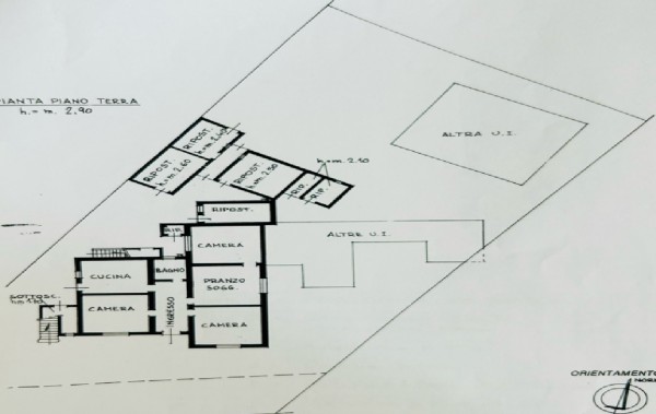
  Vendesi a Portogruaro, località Summaga, appartamento al piano terra di un immobile composto da due unità abitative piano terra, primo piani, così disposto: ingresso, 3 camere, cucina abitabile, pranzo-soggiorno, bagno, 7 ripostigli esterni di varie dimensioni. Con scoperto di pertinenza, sia antistante che retrostante la casa. Il tutto in buone condizioni. Per informazioni chiamare il 348 2613519.
  
  
   
  
 
  
  
   RICHIEDI INFORMAZIONI
 RICHIEDI INFORMAZIONI